为间歇性的电气问题有时通过断开和重新连接接头得到解决卡特c15 c18柴油发动机
电气接头-检查SMCS 代码: 7553-040-WW 系统操作描述:许多电气问题有恶劣条件引起。以下程序会帮助检测接头和电线的问题。如果问题被发现,纠正问题并确认问题已解决。间歇性的电气问题有时通过断开和重新连接接头得到解决。在断开接头前,检查诊断代码是非常重要的。在重新连接接头后也应检查诊断代码。如果诊断代码的状态由于断开和重新连接接头而改变,有几种可能的原因。最可能的原因是端子松动,不适当地夹住端子,潮湿,腐蚀和连接不充分。遵照这些指导:• 总是使用1U-5804夹线工具来维护Deutsch HD和DT接头。不要将端子焊到电线上。参考“ SEHS9615,维护Deutsch HD和DT接头”。• 总是使用147-6456楔口拆卸工具来拆下DT接头的楔口。不要用螺丝刀从接头上撬开楔子。
总是使用单独线路作为电压表探针或测试灯。不要破坏电线的绝缘来测量。如果切断电线,总是应安装一个新的端子以修复。警告连接或断开任何电气设备会引起爆炸危险,可能导致伤害或死亡。不要在可燃可爆环境中连接或断开任何电气设备。测试步骤 1. 检查接头有无潮湿和腐蚀
图33接头上泄漏的密封(范例)A. 检查所有电线线束。确认电线线束的路径允许电线以垂直的角度进入每个接头表面。否则,电线会使密封孔变形。参考图33。这会产生潮湿进入的路径。确认电线密封正确地密封。
图34接口插头安装图(范例)(1) 电子控制模块(ECM)接头(2) 正确地插入插头(3) 不正确地插入插头B. 确认密封插头到位。如果有插头脱落,更换插头。. 确认插头正确地插入接口。参考图34。
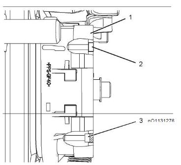
图35三针接头的密封(范例)
图36ECM接头的密封(范例)C.断开可疑接头,检查接头密封。确认密封状态良好。如果需要,更换接头。D.彻底检查接头有无潮湿进入痕迹。注意:在接头密封上看到一些微小的密封破损是正常的。微小密封破损不会使潮湿进入。如果接头上潮湿或锈蚀痕迹明显,必须找到潮湿的来源,必须得到修理。如果潮湿进入的源头没有修复,问题会重复出现。简单干燥接头不解决问题。检查以下项目中可能的潮湿进入路径:• 丢失的密封• 未正确安装的密封• 绝缘上的断口• 接头配合不正确潮湿也能通过电线内部进入接头。如果接头发现水分,益阳Perkins帕金斯1106C-70TA发动机缸套组件供应服务商,武威Perkins帕金斯1106D-E70TAG2发动机油水分离器联系,山南Perkins帕金斯2206A-E13TAG5发动机高压油泵、油泵组件哪里有,日喀则Perkins帕金斯2506C-E15TAG4发动机机油冷却器哪里有,应彻底检查接头线束有无损坏。也应检查其他共用线束的接头有无水分。注意:ECM是一个密封元件。如果在ECM接头中发现水分,ECM不是水分源头。不要更换ECM。期望结果:线束电线、接头和密封状态良好。接头中没有明显水分。结果:• OK-线束电线、接头和密封状态良好。继续进行测试步骤2。• 不行-线束或接头发现问题。修理:如果需要,修理接头或线束。确认所有密封到位。确认接头已重新连接。如果插针、插口或接头腐蚀明显,只能用变性酒精去除腐蚀。使用棉签或软刷去除腐蚀。如果接头中发现水分,运转发动机几分钟,再次检查水分。如果水分再次出现,那么水分正吸入接头。即使水分进入路径已被修复,还是需要更换电线。确认修理消除了问题。停止。测试步骤 2. 检查电线有无绝缘损坏A.细致检查每根电线有无擦破、刻痕和切口。检查电线有无以下情况:• 暴露的绝缘层• 电线与发动机摩擦• 电线与尖角摩擦B.检查所有线束搭扣,以确认线束适当地固定。并且检查所有搭扣,以确认线束没有受挤压。拉回线束套,以检查电线平口。过紧的搭扣会压平线束。这损坏线束内部的电线。
期望结果:电线没有擦破、刻痕和切口,线束被适当地夹住。结果:• OK-线束正常。继续进行测试步骤3。• 不行-线束损坏。修理:如果需要,修理或更换线束。确认修理消除了问题。停止。测试步骤 3. 检查接头端子A. 目视检查接头内的每个端子。确认端子没有损坏。确认端子在接头内对齐,确认端子在接头内正确定位。期望结果:端子正确对齐,端子外观没有损坏。结果:• OK-端子正常。继续进行测试步骤4。• 不行-接头的端子损坏。修理:如果需要,修理或更换线束。确认修理消除了问题。停止。gO1131435图37插座锁紧楔(例子)A.确认接头的锁紧楔安装正确。如果锁紧楔没有正确安装,端子就不能保持在接头内。B.在每个电线上进行45 N (10 Ib)拉力测试。 每个端子和接头应当保持45 N (10 Ib)的张力,每个电线应保持在接头体内。该测试检查是否电线被正确地夹住。期望结果:每个端子和接头承受45 N (10 Ib)的拉力,每个电线应保持在接头体内。 结果:• OK-全部端子通过拉力测试。继续进行测试步骤5。• 不行-某个电线被从端子中拉出,或某个端子被从接头中拉出。修理:使用1U-5804夹固工具更换端子。如果需要,更换损坏的接头。确认修理消除了问题。停止。测试步骤 4. 在每个电线端子连接处进行拉力测试

测试步骤 5. 检查销对插口的夹持性能图38 g01131604测试针脚保持能力图(例子)A. 确认插口有良好的销的保持能力。插入一根新销到每个插口,一次一个,以检查插口销有良好的夹持。期望结果:插口对新销有良好保持能力。结果:• OK-端子正常。继续进行测试步骤6。• 不行-端子损坏。修理:使用1U-5804夹固工具更换损坏的端子。确认修理消除了问题。停止。测试步骤 6. 检查接头的锁紧机构A.确认接头正确锁住。锁住接头后,确认两边不能被拉开。B.确认接头锁片正确锁住。并确认接头锁片回到锁住位置。期望结果:接头可靠地锁住。接头和锁紧机构没有裂纹或破坏。结果:• OK-接头状态良好。继续进行测试步骤7。• 不行-接头锁紧机构损坏或丢失。修理:如果需要,修理或更换接头。确认修理消除了问题。停止。测试步骤 7. 检查接头紧固螺栓目视检查ECM接头的紧固螺栓。确认每个紧固螺栓的螺纹没有损坏。A. 连接ECM接头。图39gOH32827120针ECM接头的紧固螺栓(例子)a.拧紧120针ECM接头的紧固螺栓到7.0 ± 0.5 Nm (60 ± 4 Ib in)。 图40gOH3284970针ECM接头的紧固螺栓(例子)
b.拧紧70针ECM接头的紧固螺栓到6.0 ± +1.5 Nm (55+ 13 -4 Ib in)。

图41gOH3286340针ECM接头的紧固螺栓(例子)c.拧紧40针ECM接头的紧固螺栓到2.25 ± .25 Nm (20 ± 2 Ib in)。
图4240针和70针定制接头的紧固螺栓(例子)B.连接定制接头。拧紧40针和70针定制接头的紧固螺栓到2.25 ± .25 Nm (20 ± 2 Ib in)。 期望结果:ECM接头可靠,紧固螺丝正确拧紧。结果:• 0K-ECM和定制接头正确连接。继续进行测试步骤8。• 不行-ECM接头或定制接头的紧固螺栓损坏。修理:如果需要,修理或更换接头。

确认修理消除了问题。停止。测试步骤 8. 在卡特ET上进行“ 晃动测试”A.在卡特ET上诊断测试中选择“ 晃动测试” 。B.选择适当的参数组来观察。C.按“ 开始” 按键。晃动线束以再次产生间歇性问题。如果存在间歇性问题,状态栏会亮起,蜂鸣声响起。期望结果:在“ 晃动测试” 中显示没有间歇性问题。结果:• OK-没有发现间歇性问题。OK-线束和接头正常。如果你来自其他程序,回到原本的程序,继续测试。如果测试解决问题,恢复发动机运行。停止。• 不行- 至少显示有一个间歇性问题。修理:修理线束和/或接头。确认修理消除了问题。停止。